Avec 44 m², la KEU FAMILY redéfinit le confort exclusif en version compacte. Configurable en une ou deux chambres, elle incarne un art de vivre sophistiqué, soutenu par des finitions haut de gamme et une domotique élégante. Une pièce rare dans l’univers des tiny houses.



Disponible en configurations à une ou deux chambres, il offre des aménagements intelligents qui garantissent l’intimité sans perdre en chaleur et en convivialité.
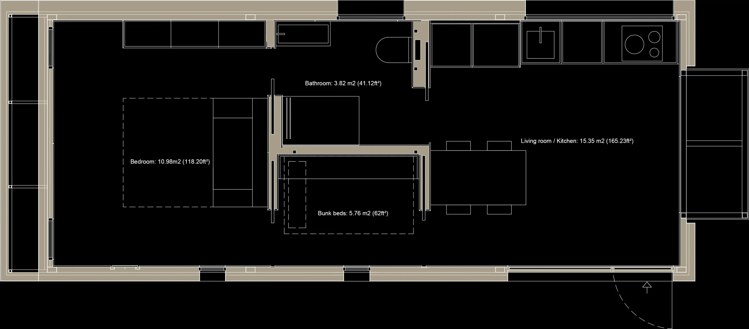
Salle de bain familiale avec douche à effet pluie, lavabo suspendu et murs en grès cérame grand format.



Salle de bain familiale avec douche à effet pluie, lavabo suspendu et murs en grès cérame grand format.

À partir de
sans terrasses
Hauteur : 3,66 m sans fondation Poids : 12.000 kg
Encombrement

Traffic White

Champagne Metalic











Toit plat avec pente cachée de 5 %.
Isolation par panneaux sandwich structurels de 7,84 pouces.
Membrane d’étanchéité à double couche en asphalte.
Menuiserie en aluminium à rupture thermique
Ancrage structurel tous les 4,72 pouces
Vitrage de sécurité résistant aux ouragans en option (SentryGlass)
Auvent
non inclus
Pont
disponible en option (non inclus dans l’équipement standard)
Éclairage extérieur
Revêtement de sol
Sol stratifié multicouche résistant à l’eau, finition effet chêne
Éclairage
Système LED intégré (lumière chaude 3000K, non gradable)






CARREAUX DE PORCELAINE







Pulpis Natural Silk 6mm



Cuisine
Conception suspendue sur structure métallique apparente avec rétroéclairage.
Plan de travail en porcelaine avec évier intégré 40,6 cm × 40,6 cm.
Meubles laqués avec tiroirs et armoires assortis
Comprend :
– Plaque vitrocéramique à 2 ou 4 zones (selon la configuration)
– Hotte aspirante intégrée
– Réfrigérateur intégré
– Poubelle dissimulée
– Couverts inclus
– Rangements métalliques dans les tiroirs
ARMOIRES EXTÉRIEURES







Salle de bain
Meuble mural avec lavabo en porcelaine intégré
-Plan de travail en porcelaine
-Douche revêtue de porcelaine avec paroi en noir mat
-Toilettes suspendues avec réservoir intégré
-Miroir rétroéclairé (80 cm × 80 cm)
-Robinets en noir mat
-Rangement intégré dans le meuble
FINITION DE LA DOUCHE










COLLECTION DE ROBINETS



Lit coffre relevable, taille queen
-Armoire intégrée avec tringle
ROULEAUX AVEUGLES



















LIT AVEC CANAPÉ



Isolation thermique
Toiture : PUR 7,84 po – R54 h·pi²·°F/BTU
Mur extérieur : PUR 1,57 po – R11 h·pi²·°F/BTU
Mur intérieur : EPS 3,14 po – R11 h·pi²·°F/BTU
Plancher : XPS 1,57 po – R7 h·pi²·°F/BTU
Climatisation et ventilation :
Système centralisé à conduits (refroidissement/chauffage/renouvellement d’air)
Unité intérieure dissimulée avec distribution par faux plafond
Eau chaude sanitaire (configurable)
-Option 1 : chauffe-eau sans réservoir (activé à la demande)
-Option 2 : chauffe-eau à double réservoir de 21 gallons avec commande numérique et haut rendement
Pré-installation solaire
Disponible dans le cadre d’une étude personnalisée en fonction de l’emplacement et des besoins de l’utilisateur.
Contrôle d’accès et sécurité
Serrure numérique avec accès par empreinte digitale, code, clé physique, carte et application mobile
Étanche, adaptée à une utilisation en extérieur
| Cookie | Duration | Description |
|---|---|---|
| cookielawinfo-checkbox-analytics | 11 months | This cookie is set by GDPR Cookie Consent plugin. The cookie is used to store the user consent for the cookies in the category "Analytics". |
| cookielawinfo-checkbox-functional | 11 months | The cookie is set by GDPR cookie consent to record the user consent for the cookies in the category "Functional". |
| cookielawinfo-checkbox-necessary | 11 months | This cookie is set by GDPR Cookie Consent plugin. The cookies is used to store the user consent for the cookies in the category "Necessary". |
| cookielawinfo-checkbox-others | 11 months | This cookie is set by GDPR Cookie Consent plugin. The cookie is used to store the user consent for the cookies in the category "Other. |
| cookielawinfo-checkbox-performance | 11 months | This cookie is set by GDPR Cookie Consent plugin. The cookie is used to store the user consent for the cookies in the category "Performance". |
| viewed_cookie_policy | 11 months | The cookie is set by the GDPR Cookie Consent plugin and is used to store whether or not user has consented to the use of cookies. It does not store any personal data. |